売買物件07033(秋田市土崎港北三丁目)
土崎駅、コープ秋田に近く生活の利便性が高い住宅地。広いサンルームが付いている住宅です。
売買物件登録情報 登録番号:07-033(秋田市土崎港北三丁目)
- 所在地
- 秋田市土崎港北三丁目
- 用途/取引形態
- 住宅/売買
- 希望価格
-
17,810,000円
- 都市計画区域
-
市街化区域(第一種住居地域)
- 各計画区域
-
居住誘導区域
- 敷地面積
-
414.33平方メートル(125.33坪)
- 建物(延床)面積
-
1階:98.54平方メートル(29.80坪)
2階:89.85平方メートル(27.17坪)
合計:188.39平方メートル(56.98坪)
- 構造
- 木造
- 建築年月
- 平成14年9月築
- 補修の要否
- 補修不要
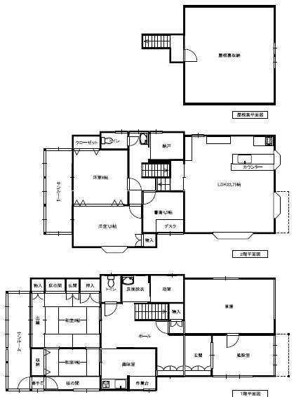
- 間取り
-
5LDK+DK+S
1階(DK6 和4 和8)
2階(LDK22.75 洋8 洋7.5 洋4.5 納戸)
- 設備状況
-
電気:引込済
風呂:灯油水道:上水道
キッチン:IH
下水道:下水道
トイレ:水洗/洋式
駐車場:2台
車庫:1台
庭:有
物置:有
家庭菜園:有
雪捨て場:有
- 主要施設までの距離
-
駅:土崎駅 約1.3キロメートル
バス停:港北四丁目 約0.2キロメートル市役所:北部市民サービスセンター 約1.8キロメートル
病院:秋田厚生医療センター 約2.4キロメートル
消防署:土崎消防署 約2.3キロメートル
警察署:秋田臨港警察署 約2.7キロメートル
保育園:こども園あきた風の遊育舎 約2.4キロメートル
小学校:港北小学校 約0.3キロメートル
中学校:土崎中学校 約0.8キロメートル買い物:コープ秋田 約0.5キロメートル
- その他特記事項
-
- 耐震診断不要、建物状況調査未実施
- 二世帯住宅
- 物置あり(未登記)
- 登録年月日
-
令和8年2月3日
- 取扱い宅建業者
-
株式会社トラスト・マン
〒010-0918 秋田市泉南一丁目12-24
電話:018-893-4623


![]()
![]()
![]()
![]()
![]()
![]()
よりよいウェブサイトにするために、ページのご感想をお聞かせください。
このページに関するお問い合わせ
秋田市都市整備部 住宅政策課
〒010-8560 秋田市山王一丁目1番1号 本庁舎4階
電話:018-888-5770 ファクス:018-888-5771
お問い合わせは専用フォームをご利用ください。
